LF House

Fabiola Ovando, Monica Guerra, Oscar Maciel
Location: Zapopan, Mexico
Project: Residential Architecture
Category:
Software: Autocad, Sketchup, 3ds Max, V-ray, Photoshop, Illustrator
Status:
Area:
Concrete, Glass, Stone, Wood
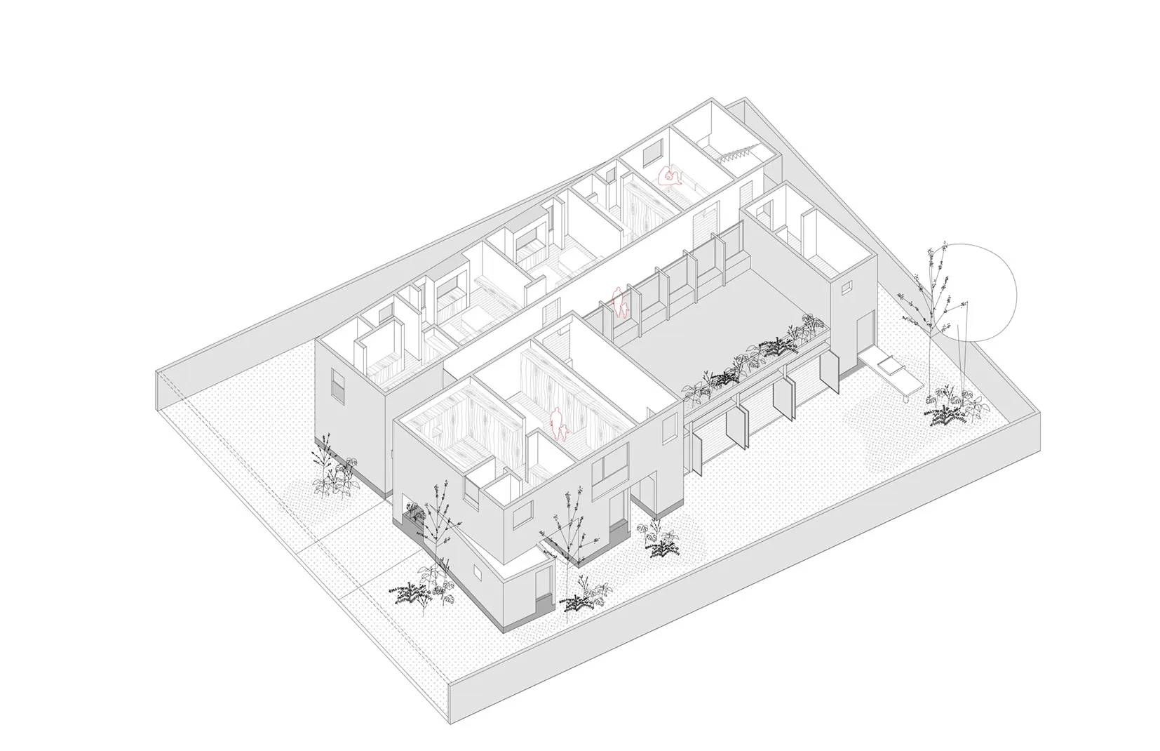
We start from two main ideas achieved by rotating the layout of the house. The first was not to prioritize the car by assigning it the use of the main facade, but rather to hide it to use the front for an entrance patio. The second accomplishment was to use the longest part of the plot, which also has the best orientations, to have a larger garden (related to various interior spaces) and to place windows better oriented in the rooms.
The shape of the project is defined by the family’s way of living; thus, the project is divided into two volumes (one for the parents and one for the children) connected by a lower intermediate corridor, which leads to a small terrace.

Recommended Courses

Essential resources

Type Keywork to Search