Taller de Arte de Corte de Papel y Bibliotecas Lakeshore / SSDesign
Ubicación: Taizhou, China
Proyecto: Arquitectura Cultural
Programas informáticos: Autocad, Revit
El Contexto y el Desafío de la Revitalización Rural
La aplicación de la política de «bellas campiñas» ha supuesto una importante transformación medioambiental para aldeas como Bulu Town, situada cerca del río Yongan. Este asentamiento se enfrenta a un dilema típico del desarrollo rural moderno: la coexistencia de una ciudad mercado de nueva construcción junto a un pueblo tradicional que ha sido abandonado en gran medida por la juventud, dejando a una población anciana cada vez más aislada. El proyecto pretende renovar los edificios antiguos a un coste muy bajo, alineándose con los objetivos del gobierno de revalorizar la propiedad al tiempo que se preserva la vitalidad histórica de la zona. Al centrarse en la regeneración sostenible, la iniciativa pretende satisfacer las necesidades actuales de desarrollo sin borrar la identidad cultural que define a estas antiguas comunidades.
Planificación Estratégica e Infraestructura Social
Las encuestas sobre el terreno en la ciudad de Bulu revelaron una carencia crítica de espacios de aprendizaje extraescolar para los niños, zonas de ocio para los aldeanos y lugares de exposición para los artistas locales del recorte de papel. En respuesta, el gobierno dio prioridad a la construcción de espacios públicos sin ánimo de lucro, lo que a menudo supone un reto presupuestario. Tras mejorar las instalaciones municipales fundamentales, como el firme de las carreteras y la infraestructura de la red, la atención se centró en la zona lacustre del lago Mei. Se seleccionaron dos edificios concretos para reconstruirlos y que sirvieran de puntos de referencia comunales. Estas intervenciones se diseñaron para que fueran rentables -con un coste de unos 100.000 yuanes-, asegurando que la inversión se considerara adecuada en relación con los niveles económicos locales y evitando las fricciones que suelen causar los proyectos urbanos ineficaces a gran escala.
El Taller de Arte de Corte de Papel: Transparencia y Tradición
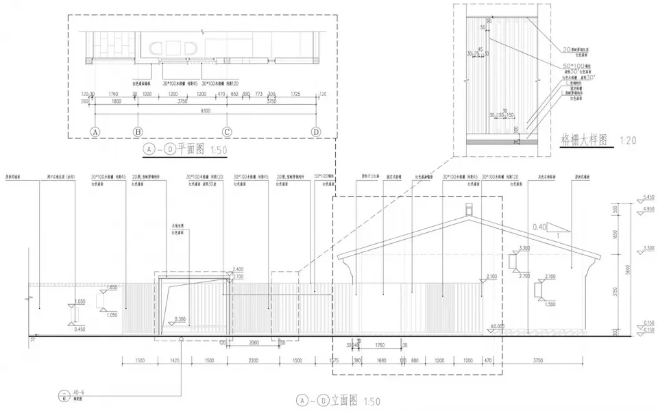
El primer gran proyecto es el Taller de Arte de Corte de Papel, originalmente un edificio cerrado de ladrillo y madera con un patio irregular. La intervención arquitectónica trató de romper el aislamiento de los muros originales utilizando rejas que filtran el paisaje del lago Mei, creando un efecto de silueta que conecta el interior con el paisaje. La distribución se reorganizó en una secuencia de espacios -incluidos un patio delantero, un pabellón central y una sala de exposiciones- que permite a los visitantes vislumbrar el lago mientras se desplazan por el estudio. Este diseño imita la naturaleza en capas de la propia artesanía del recorte de papel, transformando una galería estática en una extensión viva del pueblo donde los residentes pueden descansar, disfrutar de las vistas y relacionarse con su arte popular no patrimonial en un entorno natural y fluido.
El Bar de Libros: Reutilización de materiales y conexión con la comunidad
El segundo proyecto consistió en convertir una estructura frágil y envejecida en un Book Bar de tres plantas en una esquina estratégica junto al lago. Haciendo hincapié en el «reciclaje y la reutilización» de materiales, el diseño mantiene un diálogo entre la antigua estructura de madera y las modernas aberturas de las ventanas, que ofrecen vistas variadas de las calles tradicionales y del agua. El interior está dividido funcionalmente para servir a todos los grupos de edad: la primera planta actúa como salón de té social, la segunda ofrece una zona de lectura tranquila, y el ático está dedicado a los libros infantiles. Al utilizar materiales familiares y «torpes», como piedra lisa, acero en bruto y troncos, el edificio evita la brusquedad de la urbanización excesiva, fomentando un sentimiento de pertenencia y una estética local poética que anima a los aldeanos a volver a conectar con su patrimonio.